Với chức năng thương mại kết hợp nhà ở, 3 tầng dưới dành cho siêu thị điện tử, 2 tầng trên là căn hộ penhouse – mục tiêu thiết kế hướng đến một tòa nhà vừa hiện đại, phù hợp chức năng thương mại, vừa thân thiện, gần gũi, thích hợp với không gian ở gia đình.
Thông tin dự án:
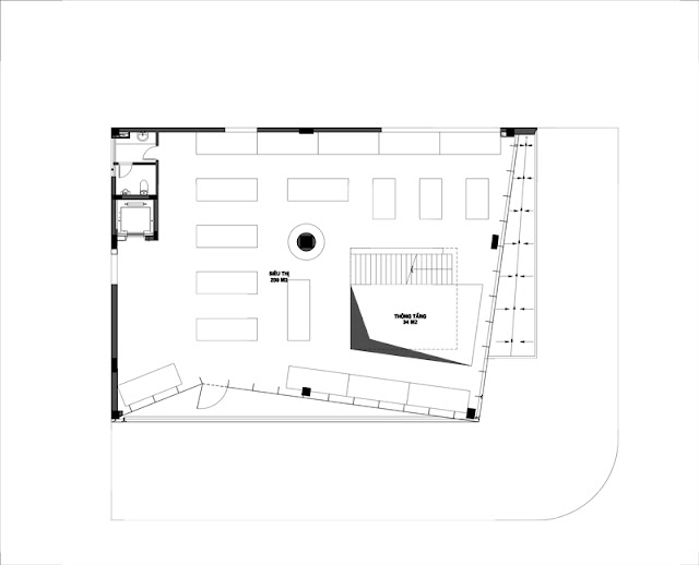
Dự án: Dream House (siêu thị điện tử và căn hộ gia đình)
Tác giả: KTS Hoàng Thúc Hào, KTS Đỗ Minh Đức
Công ty kiến trúc 1+1>2
Chủ đầu tư: Công ty điện tử Thắng Bắc
Năm thiết kế: 2005 đến 2009
Hoàn thành: 2012
Diện tích đất: 381,6 m2
Quy mô: Nhà 5 tầng, 1 tầng hầm
Công trình Rubic xanh nằm tại khu đô thị Bãi Cháy, thành phố Hạ Long, tỉnh Quảng Ninh. Khu đất có diện tích 381.6 m2, trên trục đường chính, sát một ngã ba rộng.
Với chức năng thương mại kết hợp nhà ở, 3 tầng dưới dành cho siêu thị điện tử, 2 tầng trên là căn hộ penhouse – mục tiêu thiết kế hướng đến một tòa nhà vừa hiện đại, phù hợp chức năng thương mại, vừa thân thiện, gần gũi, thích hợp với không gian ở gia đình.
Hình thái kiến trúc vuông vức, đơn giản với chất liệu kính chủ đạo, lấy cảm hứng từ những viên than đá – biểu tượng đặc trưng Quảng Ninh. Do vị trí nằm góc đường, đồng thời muốn chuyển tải tính năng động, linh hoạt và tinh thần đương đại, công trình chủ ý xoay đi một góc, như khối Rubic đang xoay. Ý tưởng này tạo ra các điểm nhìn thú vị, bất ngờ, gây ấn tượng thị giác đồng thời tăng sức hấp dẫn, thu hút. Công trình hiện đại, mạch lạc như những thiết bị điện tử, thể hiện thế mạnh kinh doanh của chủ đầu tư.
Hệ thống không gian xanh, mặt nước cho không gian sống phía trên góp phần tách biệt chức năng, đem lại sự riêng tư cần thiết cho sinh hoạt gia đình. Tổ chức không gian ở tầng 4, 5 chủ động mang thiên nhiên vào ngôi nhà, tạo yên tĩnh ngay trong cái náo nhiệt của môi trường kinh doanh bên dưới.
Các giải pháp thiết kế đều hướng tới một kiến trúc bền vững: Khối Rubic xoay tạo bóng đổ bản thân, làm mát tòa nhà; mặt nước lớn tầng 4 mang lại cảm giác thư giãn, thoải mái, đón gió đông nam, giảm bức xạ. Khoảng thông tầng hợp lý, không chỉ tạo các không gian nội thất ấn tượng, mà có tác dụng hút gió mát, đẩy khí nóng bốc lên, thoát ra ngoài. Phần lớn công trình chiếu sáng và thông gió tự nhiên, sử dụng kính cách nhiệt nên đã giảm đáng kể năng lượng tiêu thụ, đặc biệt với trung tâm thương mại điện tử.
Khối Rubic xanh đã phát huy và tận dụng tối đa các yếu tố tự nhiên, văn hóa để trở thành điểm nhấn trong khu vực. Hy vọng công trình xứng đáng với đất mỏ và di sản độc đáo của Quảng Ninh.





























